Thân Bồn Cầu TOTO CW812RA#W TC811SJ#W Treo Tường
12.597.000 VND
來源: 印度尼西亞、中國
TOTO CW812RA壁掛式馬桶規格:
- 系列:LE MUSE
- 產品代碼:CW812RA#W
- 產品名稱:掛壁式馬桶 緩降蓋 TC811SJ
- 排氣系統:龍捲風
- CeFiONtect 技術使馬桶變得超級光滑,最大限度地減少污漬和細菌。
- 設計:長身
- 卸料中心:210mm
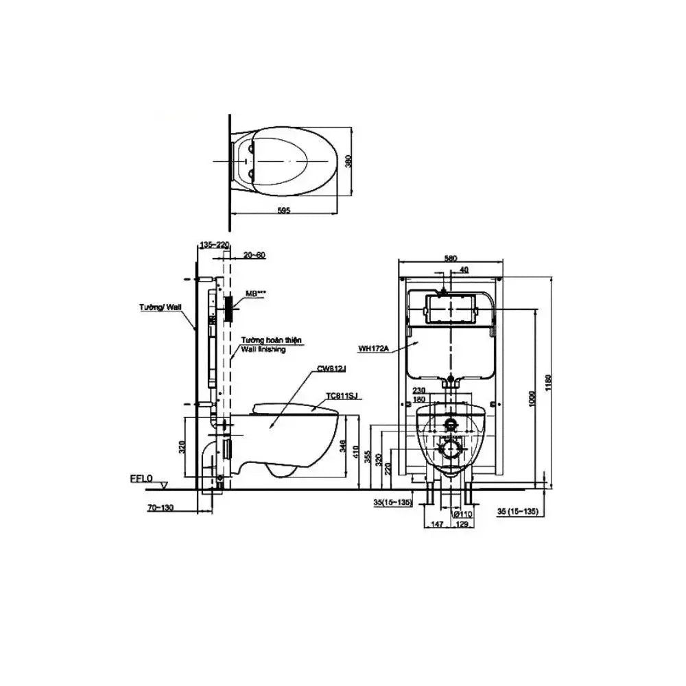
- 尺寸:380x595x346 毫米
- 水壓:0.05Mpa~0.75Mpa
- 顏色:白色
- 舊產品代碼:CW812JWS
- 隱藏式電線馬桶:CW812REA
TOTO馬桶CW812RA#W/TC811SJ#W壁掛水箱特點
- 與 LE MUSE 套裝和諧的設計
- 軟關閉蓋
- 封閉式機身設計節省了清潔產品的時間和成本
- 壁掛式馬桶,清潔方便
- 壁掛式水箱設計
落地式馬桶配件詳細資訊包括:
- 橋體:CW812RA - 產地:印度尼西亞
- 馬桶蓋:TC811SJ - 產地:中國
TOTO CW 812 RA 馬桶技術圖紙

附件Thân Bồn Cầu TOTO CW812RA#W TC811SJ#W Treo Tường
有賬戶的經銷商,請登錄購買或註冊賬戶(此處) 如果您不是 Cuong Lam 系統的代理商,請聯繫我們(此處)。